
Containing the Spread
What
Where
When
For
With
Where
When
For
With
Affordable Housing
Oakland, CA
2020
Hack-a-house
Felicia Jiang
Vanessa Lee
Maria Alatorre
Oakland, CA
2020
Hack-a-house
Felicia Jiang
Vanessa Lee
Maria Alatorre
The yearly Hack-a-House architecture competition issued a call for affordable housing projects to be designed and presented after only 24 hours of revealing the prompt. Being issued within the beginning months of the COVID pandemic, this year’s prompt encouraged teams to try and imagine ways that housing can not only be affordable, but also respond to this unprecedented pandemic. Being in the bay area, our group proposed a local solution that leveraged the excess of shipping containers from the port of Oakland.
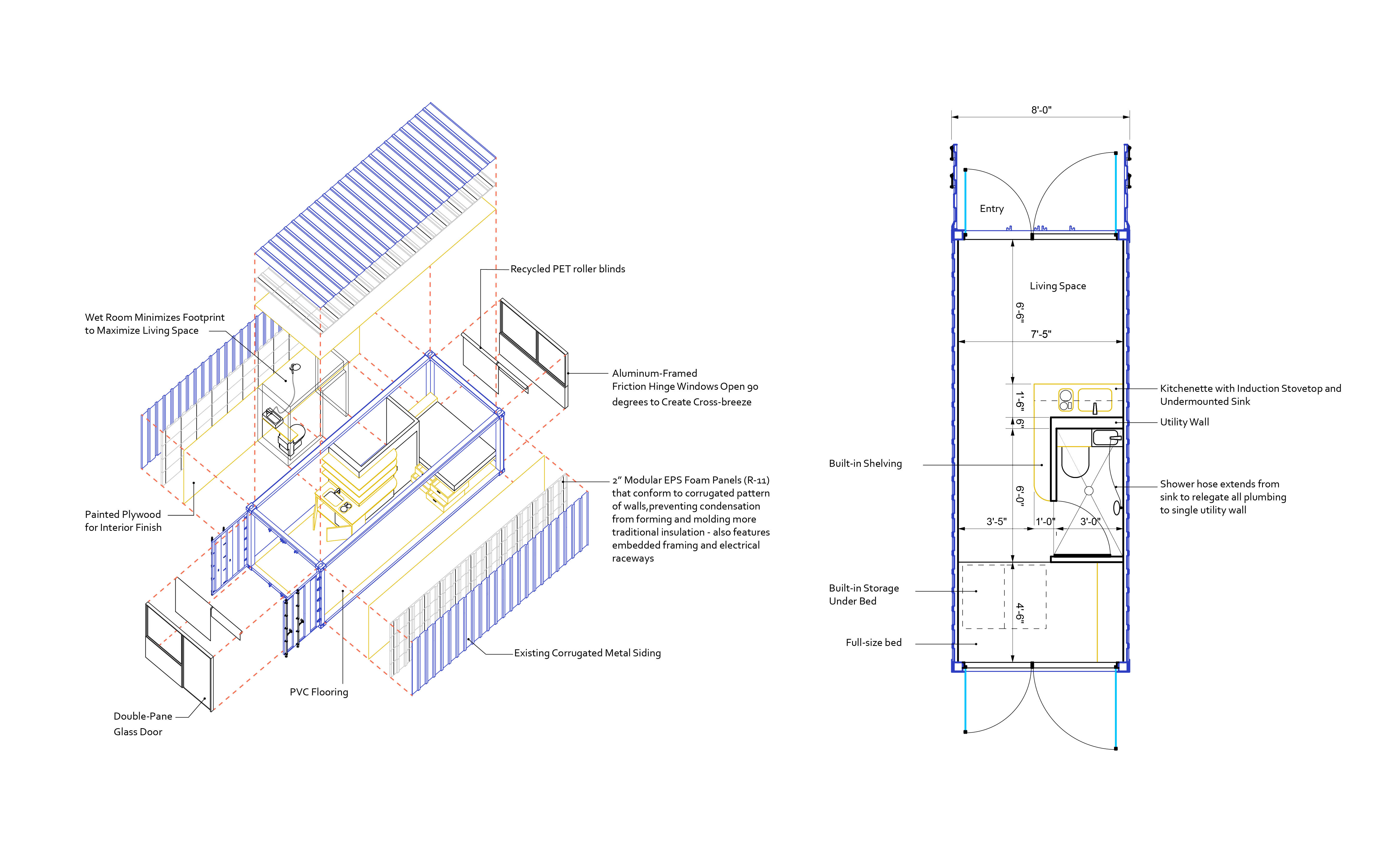
A sole container is designed as a comprehensive studio module for a single person or frugal couple. The interior is laid out with a wet room dividing the living space from the sleeping space. All of the necessary plumbing fixtures are aligned into one wall which is shared between the wet room and kitchenette. This allows the long walls of the containers to be continuously clad with 2” foam pannels which conform to the corrugated pattern of the existing siding. This addresses the notorious issue within shipping container retrofits of condensate buildup while also increasing the thermal integrity of the units. Considering CDC guidelines for ventillation with COVID, the ends of the unit are equipped with operable windows to keep fresh air cross-ventillating through. In the case of infection, however, these windows can be shut to quarantine the occupant(s) and limit the spread of the virus.
Designed to stack vertically, many of these shipping container units can fit into the urban fabric within a small footprint, resulting in a high density community that can flexibly squeeze into the dead spaces of the urban fabric.
A sole container is designed as a comprehensive studio module for a single person or frugal couple. The interior is laid out with a wet room dividing the living space from the sleeping space. All of the necessary plumbing fixtures are aligned into one wall which is shared between the wet room and kitchenette. This allows the long walls of the containers to be continuously clad with 2” foam pannels which conform to the corrugated pattern of the existing siding. This addresses the notorious issue within shipping container retrofits of condensate buildup while also increasing the thermal integrity of the units. Considering CDC guidelines for ventillation with COVID, the ends of the unit are equipped with operable windows to keep fresh air cross-ventillating through. In the case of infection, however, these windows can be shut to quarantine the occupant(s) and limit the spread of the virus.
Designed to stack vertically, many of these shipping container units can fit into the urban fabric within a small footprint, resulting in a high density community that can flexibly squeeze into the dead spaces of the urban fabric.
